Description


Primal Features


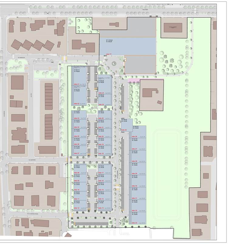
Map

Via Cerchia , Forlì (FC)

Information request

Send
Cookie preference