Descrizione

Corso Repubblica rif. 1489

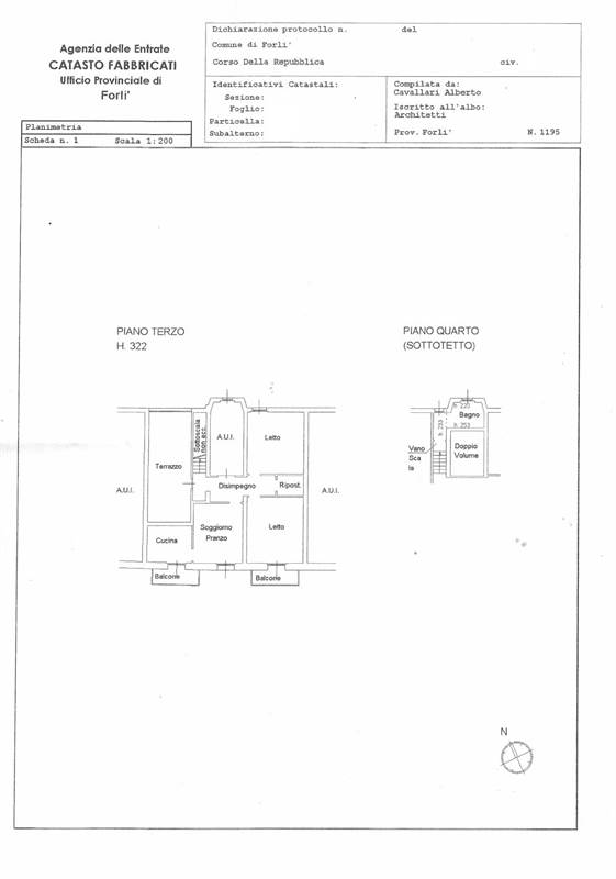
in palazzina di 3 unità vendesi appartamento posto al terzo piano (senza ascensore) composto da: ingresso, sala, cucina, 2 camere matrimoniali, ripostiglio, 2 balconi, terrazzo di 20 mq, e bagno posto al livello rialzato.
l'appartamento è parzialmente da ristrutturare.
al piano terra posto auto coperto e 2 cantine.
119.000 NON trattabili


Caratteristiche principali

Stato Immobile
Come da Origini
Arredi
Possibilità
Tipo Riscaldam.
Caldaia
Tipo Impianto
Radiatori
Fonte Energetica
Metano
Infissi
Legno
Pavim. Giorno
Marmo
Pavim. Bagno
Ceramica

Mappa

Corso della Repubblica , Forlì (FC)

Richiedi informazioni

Invia
Cookie preference