Descrizione

Meldola Zona Irst rif. 1472

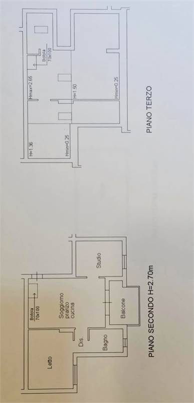
in scala di 6 unità vendesi appartamento posto al 2° piano senza ascensore composto da sala con angolo cottura, matrimoniale, singola, terrazzo, bagno con vasca ed al piano sottotetto altri 2 vani e bagno con doccia.
riscaldamento autonomo, garage e posto auto di proprietà.
158.000 € non trattabili


Caratteristiche principali

Stato Immobile
Buono
Arredi
Possibilità
Tipo Cucina
Angolo Cottura
Tipo Riscaldam.
Caldaia
Tipo Impianto
Radiatori
Acqua Calda
Autonoma
Raffrescamento
Split
Infissi
Legno Doppio Vetro
Serramenti
Ottimo
Persiana
Tapparella PVC
Pavim. Giorno
Ceramica
Pavim. Notte
Parquet
Pavim. Cucina
Ceramica
Pavim. Bagno
Ceramica
Isolamento
Presente
Isolamento termico
Cappotto esterno
Accessori: Aria Condizionata, Doppi Vetri, Porta Blindata

Mappa

via Montanari , Meldola (FC)

Richiedi informazioni

Invia
Cookie preference